【北店八代店ブログ】雨庭
設計士ブログ 2025.07.04
こんにちは。最近ぎっくり腰になりました、ぎっくり丸山です。
梅雨、夏。皆さんお好きでしょうか?
私は嫌いです。
乾燥して涼しい秋こそ至高。異論は認めません。
なのにも関わらず、四季で最も削られている秋です。憎き地球温暖化。許せない。
秋って、漢字がいいですよね。なんか文字のシルエットというか形が好きです。
春、夏、冬は完全とまでは言わないにしても、左右対称感があるじゃないですか。
でも秋って完全に左右非対称で、春夏秋冬の中でも異彩を放ってますよね。
俺は違うよ、お前らとは。見たいな孤高な感じがかっこいいです。
まあ、どうでもいい話はここまでです。
前回こちらでモデルハウスについて軽くご紹介をしました。
今回は詳細についてお話をしようかと思います。
まずはモデルハウスの概要、それからタイトルにもある雨庭についてもご説明します。
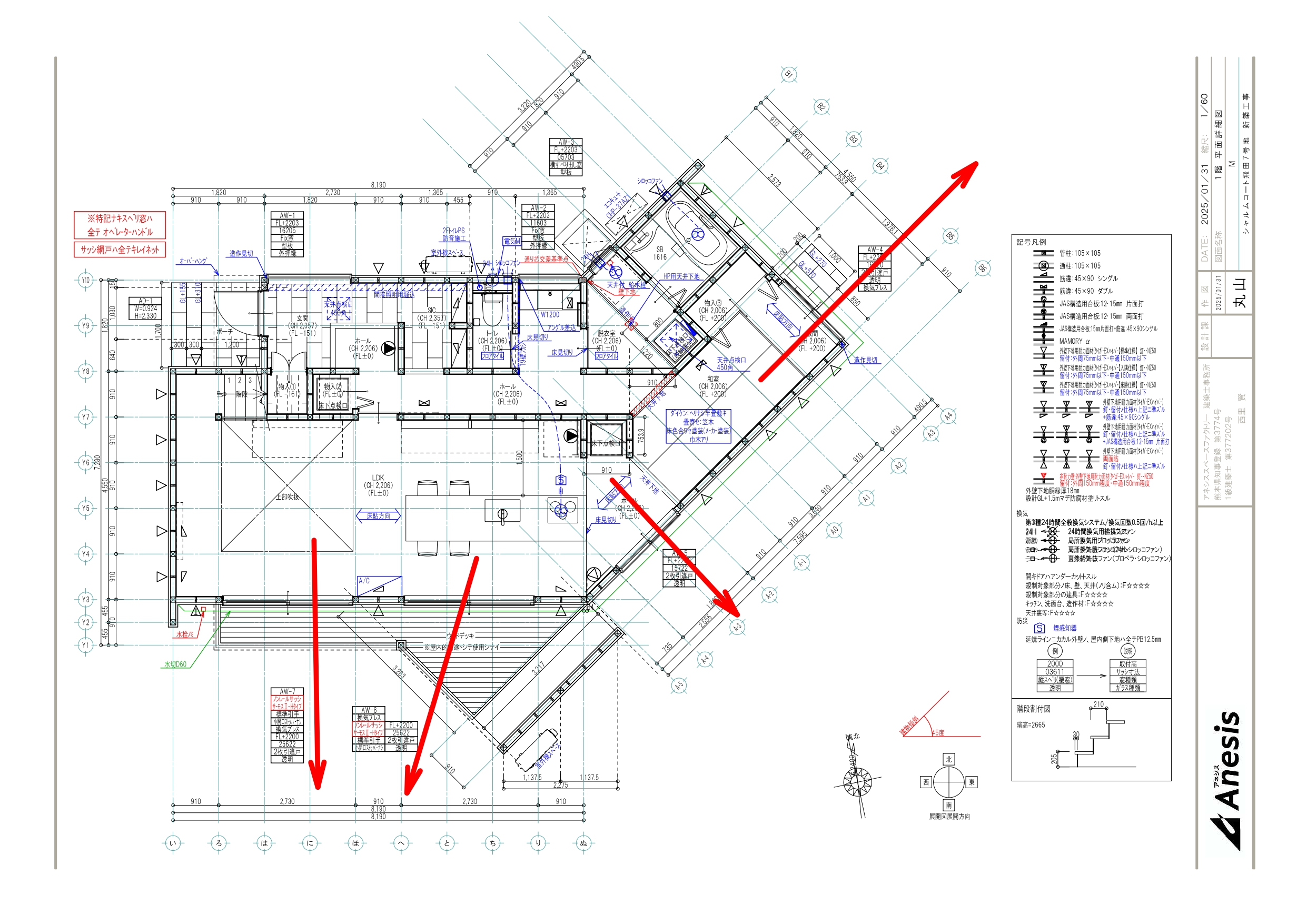
以前紹介したモデルハウスと似ていて、今回も周りは住宅に囲まれる地形です。
なので前回同様、まずは周辺の既存建物の配置をしっかりと図面に落とし込んで、一番視線が抜ける場所を検討します。
今回は真南に少し抜けそうな場所が1か所と南東の建物と建物の間に少し、それから北東は隣地の建物と距離があるので、そこも使えそうです。
なので建物形状と、視線の抜き方はこうなりました。
これは1階も2階も大体同じです。



最も抜けそうな場所が南と北東でしたので、お庭はそのどちらにも計画をしました。
北東には階段があり、敷地から裏の里道へ繋がっています。
つまりこの敷地は人の出入りできる場所が表と裏の計二ヶ所あるのです。
この二つを完全に分離させるのもアリですが、今回は少しだけ繋がるように計画をしました。
黄色の線の部分に飛び石を配置し、植樹もしております。
二つの庭を往来する途中にも外構をしっかりと計画することで、途切れない連続性を持たせてます。
建物内部からの見え方としても、南東に窓を設けて植栽を見せることで二つの庭が完全に切り離されている印象を多少軽減してます。
北東のお庭は和室からも出入りができるようになっております。
夜はライトアップされるので和室の照明自体は明るさをぐっと抑えてます。
夜間の写真が無いのが残念ですが、いい演出をしています。
この和室へは、リビングから繋がってますが、廊下からもアクセスできるようになっております。
廊下から見える和室。その先に光が差し込む様子が分かります。
この光に誘われるように進むと北東のお庭に繋がるという事です。
そして、タイトルにもあります。雨庭。
こちらの本来の目的は地下水の保全を目的としたものになります。
雨水を雨樋から集水して、この雨庭に運ぶことで熊本の地下水をしっかりと保全していく。という規模の大きい内容です。
このモデルハウスだけでは効果は小さいものですが、この考えがしっかりと浸透していけば熊本の地下水はより良いものになっていくはずです。

雨が降ると溜池になるように作られており、下には浸透層を設けることで緩やかに地中に浸透していきます。
晴れの日と雨の日でお庭の雰囲気がそれぞれ楽しめる造りになっています。ただの雨もせっかくなら楽しみたいです。
雨庭の本来の目的以外にもこのような自然を楽しむ、美しむことを住宅に取り入れていけば、より自然との距離感を近づけていける気がしています。
と、今回は少し真面目に長い話を致しました。
家づくりをするときの参考になれば幸いです。
全てを理解しようとするのは頭がパンクしてしまいますので、必要な要点だけを覚えてもらえればOKです。
つまるところ大事なことは、私も秋を目指して頑張りたいという事です。異彩、放ちます。
